Location is the most critical determinant when building your home. Ask yourself these guiding questions to ensure you choose a suitable location:
At Avantis, we possess exclusive access to many exceptional development prospects. Whether you’re seeking a lot within an established or emerging community or envision reimagining an inner-city property, we’re here to facilitate your aspirations.

Establishing and adhering to a comprehensive budget is the bedrock for your home’s successful completion. A realistic financial plan is pivotal to aligning your expectations and aspirations with practical affordability. Appreciating how factors like home layout, interior design, and selected options influence the final cost is imperative. At Avantis Builds, we champion pricing transparency and accommodate potential pricing changes based on your preferences. Recognizing the inevitability of unforeseen changes, setting aside a contingency fund is prudent. The Avantis team is committed to optimizing your investment and managing risk to safeguard you from unexpected fiscal twists.

The selection of the right builder is paramount. Builders bear the responsibility of breathing life into your vision, staying within budget, and adhering to a reasonable timeline. When meeting potential builders, always ask for proof that they are licensed and ensure they offer the Alberta New Home Warranty Program for all their builds. Avantis Builds, accompanied by comprehensive warranties, stands behind our work and approaches every construction phase with meticulous attention to quality. We’re fearless in going the extra mile, ensuring that each facet of your build stands the test of time.

The drafting and design phase forms the blueprint for your home’s layout, exterior aesthetics, and finishing touches. Deliberately considering your present and future spatial needs is pivotal for devising a functional floor plan. Collaboration with your designated sales associate or drafter to optimize your home’s layout is very important. Our design team eagerly collaborates with you to fine-tune even the minutest details, ensuring that your home’s plans reflect your unique desires and requirements.

Interior design selections can be both fun and overwhelming. You can use many different materials and themes to enhance your space, but you will also have to live with the decisions for the rest of your time in the home. Careful selection of design trends is advised, as some can fade quicker than others. Avantis Builds extends the expertise of design consultants, offering inspiration and guidance throughout the ideation process.

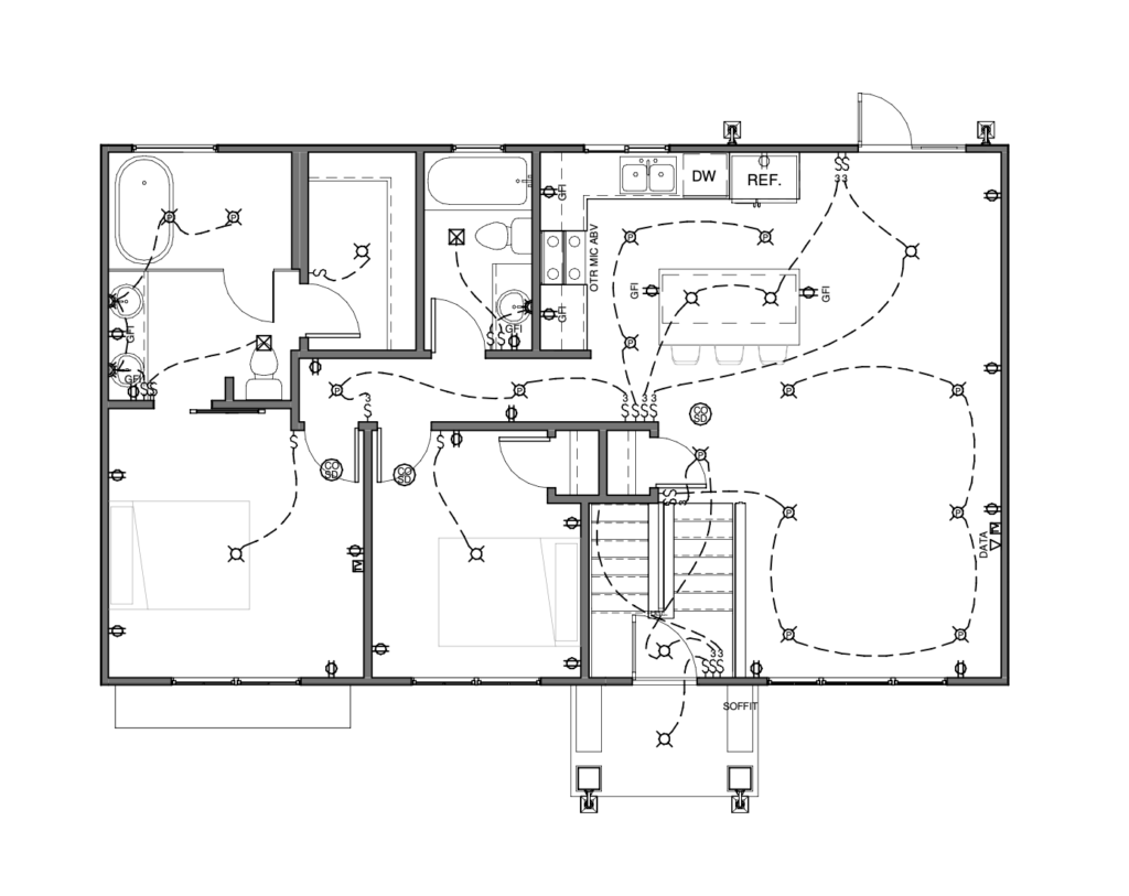
Small details are often overlooked in large projects as you can quickly become enamoured with the rest of the process. Pause to reflect on the simple details such as door swings and sizes, light fixture placement, outlet positioning, and switch locations for optimal accessibility and flow. Additional considerations like a BBQ gas line, security camera rough-ins, and built-in garbage bin pull-outs merit attention. Our team keeps a sharp eye out for all the little details so we can ensure you maintain a comfortable and convenient customer experience for the years to come in your brand-new home.

Post tags :